Buscador



Recomendados

CASA Y244

Regresar


  • Precio :$7,500,000.00 MXN 


  • Frente : 20 m2
  • Fondo : 30 m2
  • Construcción : 259.24 m2


  • Terreno : 600 m2


Descripción

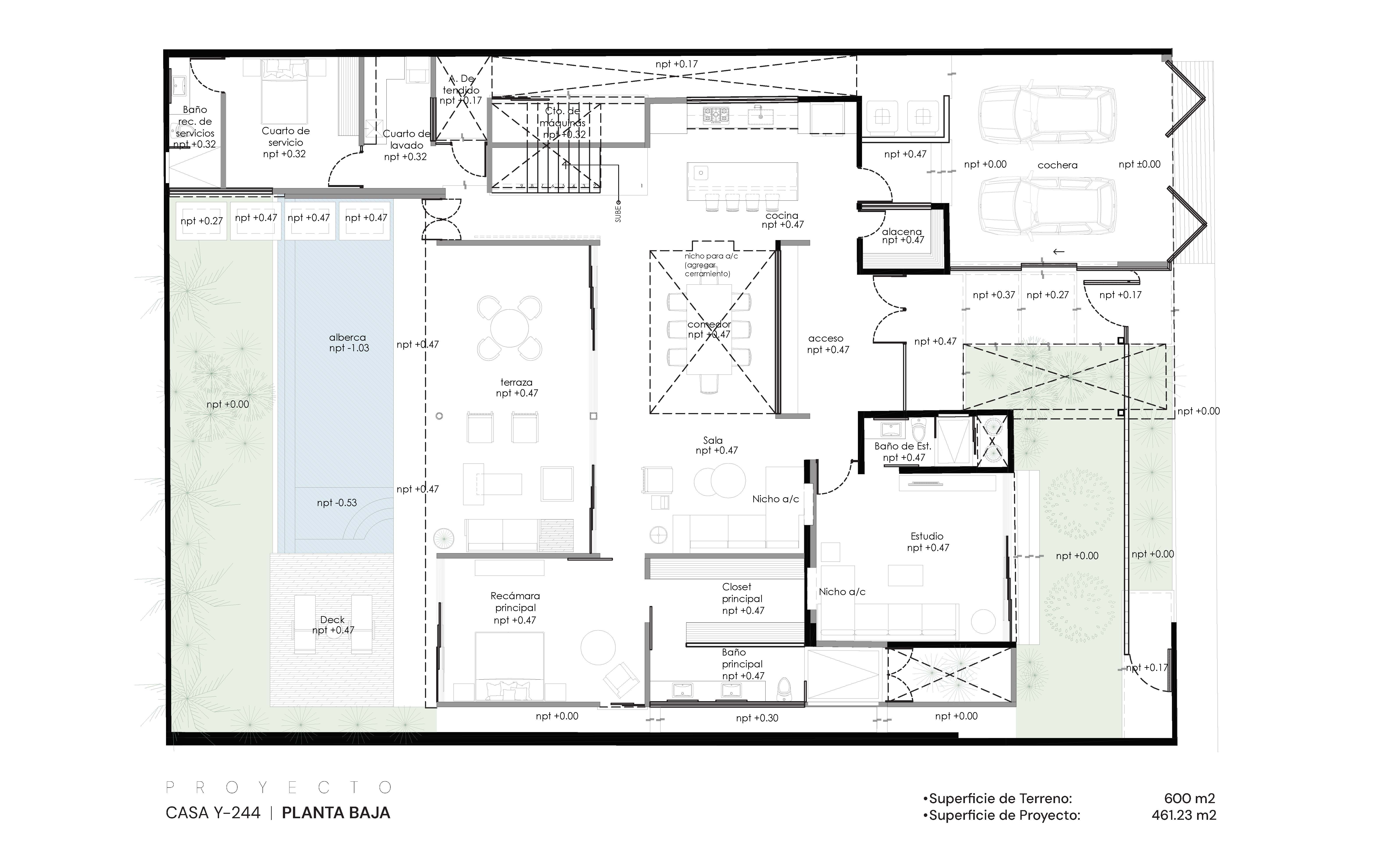
CASA Y-244

Ubicada en Mérida, Yucatán, esta propiedad se desarrolla sobre un terreno de 600 m², con una construcción existente de 259.24 m², concebida originalmente como una vivienda de espacios independientes y cerrados, donde la relación con el exterior y la amplitud espacial eran limitadas.

A partir de esta condición, surge una propuesta arquitectónica que reinterpreta completamente la casa, transformándola en una residencia abierta, luminosa y contemporánea. El proyecto plantea una nueva forma de habitar, donde las áreas sociales se expanden hacia la terraza y la alberca, integrando interior y exterior en un solo recorrido continuo.

La propuesta contempla una superficie total de 461.23 m² de construcción, reorganizando el programa en espacios más amplios y fluidos: sala, comedor y cocina conectados, estudio, recámara principal con áreas privadas, recámaras secundarias, terrazas, alberca, deck y áreas de servicio, además de una planta alta con recámaras de invitados y espacios exteriores complementarios.

Esta propiedad se ofrece con el proyecto arquitectónico listo para construir, lo que permite no solo adquirir el inmueble, sino materializar una transformación completa, elevando su valor, su calidad espacial y su forma de habitar.



Características



Compartir:
   Google  

Contactar agente

  Calle 29 entre 12 No 80 Col. México, Mérida Yucatán

  (999) 926 00 18

  henryponce@hponce.com

  • Henry Ponce